Optimálna dĺžka okruhov podlahového vykurovania
Ako optimálne dĺžky potrubia v podlahovom vykurovaní dokážu zjednodušiť montáž a zabezpečiť správne vyregulovanie sústavy? Ukážeme si na príklade.
ZADANIE
V bytovej jednotke, kde zdroj tepla je plynový kotol, máme vyriešiť podlahové vykurovanie. Z projektu na stavebné povolenie vyplýva, že každá miestnosť má vlastný vykurovací okruh. Máme informácie o rozostupoch potrubia (R=... mm), o teplotnom spáde 40/35°C. Tieto údaje boli navrhované tak, aby takto vyhotovené podlahové vykurovanie pokrylo tepelné straty v jednotlivých miestnostiach.
Pôdorys objektu:
ÚLOHA
Pripraviť vykurovaciu sústavu na realizáciu a hydraulicky ju vyregulovať.
RIEŠENIE č. 1
ZACHOVÁME NAVRHOVANÉ PARAMETRE SYSTÉMU
Vypočítame základné parametre jednotlivých okruhov:
- výkon podlahového vykurovania (na základe konštrukcie podlahy, teplotného spádu a navrhovaných rozostupov potrubia jednotlivých miestností)
- objemové prietoky (na základe výkonov a teplotného spádu) ozn. Q (l/min)
- celkové dĺžky potrubia (súčet dĺžky okruhu v miestnosti na základe rozostupu a dĺžky pripojovacieho potrubia na rozdeľovač RZ) ozn. L (m)
- tlakovú stratu okruhu pre potrubie d16x2,0 – (na základe objemového prietoku a dĺžky potrubia) ozn. H (kPa)
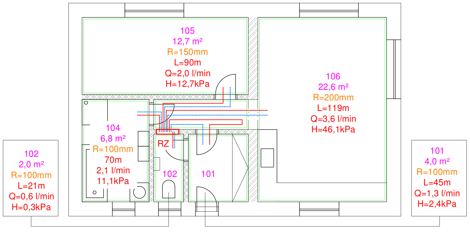
Pôdorys objektu s vypočítanými údajmi pri vykurovacích okruhoch:
Tlakové straty jednotlivých okruhov sa pohybujú od 0,3 kPa do 46,1 kPa (viď obrázok vyššie). Pri takejto realizácií by mohli vzniknúť nasledujúce dve situácie.
1. Dispozičný tlak je pre väčšinu okruhov príliš vysoký
Pre stanovenie veľkosti obehového čerpadla potrebujeme:
- spočítať celkový hmotnostný prietok v systéme podlahového vykurovanie (sčítame všetky prietoky v okruhoch)
- zistiť potrebný dispozičný tlak. Stanovíme ho tak, že vezmeme vykurovací okruh s najvyššou tlakovou stratou (v našom prípade je to okruh v miestnosti č. 106), pripočítame k nemu tlakovú stratu uzatváracieho zvršku v rozdeľovači a aj tlakovú stratu potrubia (prívod + spiatočka) od kotla po rozdeľovač (vrátane).
Tlaková strata potrubia medzi kotlom a rozdeľovačom je pre všetky okruhy podlahového vykurovania spoločná, preto nám pre účel hydraulického vyregulovania okruhov stačí vypočítať potrebný dispozičný tlak v mieste napojenia rozdeľovača. Ten stanovíme z vykurovacieho okruhu s najvyššou tlakovou stratou a pripočítame k nemu tlakovú stratu uzatváracieho zvršku v rozdeľovači.
Nomogram pre stanovenie tlakovej straty uzatváracieho zvršku v rozdeľovači:
Hmotnostný prietok cez okruh v miestnosti č. 106 je 216 kg/h (3,6 l/min) a ak uzatvárací zvršok v rozdeľovači ostane plne otvorený, jeho tlaková strata bude 1,5 kPa.
K tlakovej strate okruhu v miestnosti č. 106 (46,2 kPa) pripočítame tlakovú stratu uzatváracieho zvršku (1,5 kPa) a dostaneme potrebný dispozičný tlak pred rozdeľovačom rovný 47,7 kPa.
ΔHokr106 + ΔHuzat.zv106 = ΔHcelkový
46,2 kPa + 1,5 kPa = 47,7 kPa
Obehové čerpadlo teraz bude tlačiť do každého vykurovacieho okruhu rovnakým dispozičným tlakom 47,7 kPa.
Zvyšné vykurovacie okruhu ale tento tlak nespotrebujú, majú nižšie tlakové straty. Ak chceme hydraulicky vyvážiť sústavu, musíme prebytočný dispozičný tlak čerpadla spotrebovať na uzatváracích zvrškoch v rozdeľovači pre jednotlivé okruhy.
Ako to bude s okruhom v miestnosti č. 102?
Okruh má tlakovú stratu 0,3 kPa. Na uzatváracom zvršku pre miestnosť č. 102 potrebujeme „minúť“ čiže doškrtiť prebytočný dispozičný tlak čerpadla a to 47,4 kPa
ΔHcelkový - ΔHokr102 = ΔHuzat.zv102
47,7 kPa - 0,3 kPa = 47,4 kPa
Nomogram pre stanovenie tlakovej straty uzatváracieho zvršku v rozdeľovači:
Z Nomogramu vyplýva, že pri hmotnostnom prietoku 36 kg/h (0,6 l/min) cez vykurovací okruh v miestnosti č. 102 dokážeme na uzatváracom zvršku „minúť“ / doškrtiť len 10 kPa pri nastavení 0,25, čo je minimálne nastavenie.
V okruhu miestnosti č. 102 mám ostane ešte nespotrebovaný dispozičný tlak 37,4 kPa
ΔHcelkový - ΔHokr102 - ΔHuzat.zv102 = nespotrebovaný dispozičný tlak
47,7 kPa - 0,3 kPa - 10 kPa = 37,4kPa.
Aké sú úskalia tohto riešenia ak by sme šli touto cestou?
- Prebytočný tlak na okruhu 102 (37,4 kPa) by spôsobil zvýšený prietok vody, a ten by následne prehrieval podlahu. Povrchová teplota by mohla stúpnuť nad max. hygienické hodnoty a pobyt na nej by bol nepríjemný
- Ak by sme nastavili uzatvárací zvršok na min. hodnotu nastavavenia 0,25, otvor pre prúdiacu vodu v telese rozdeľovača by bol príliš malý a riziko upchatia nečistotou v systéme príliš veľké
- Vysoký na dispozičný tlak čerpadla neprospieva ani uzatváracím ani termostatickým zvrškom, čo sa bezhlučnej prevádzky týka, ani čo sa týka životnosti
- Ak čerpadlo pracuje pri vyšších otáčkach, narastá spotreba elektrickej energie.
2. Dispozičný tlak zabudovaného obebového čerpadla do kotla je nepostačujúci
Častokrát pre obeh vykurovacej vody v podlahovom vykurovaní máme už veľkosť obehové čerpadla danú, je inštalované v kotly. Tieto typy čerpadiel majú zvyčajne nižší dispozičný tlak, aký je potrebný pre náš príklad, cca 20 kPa pri našom hmotnostnom prietoku.
Pre okruh v miestnosti č. 106, ktorý má tlakovú stratu 47,7 kPa, nám bude chýbať ešte 27,7 kPa.
ΔHcerpadla v kotly - ΔHokr 106 - ΔHuzat.zv106 = zvyšný dispozičný tlak
20 kPa – 46,2 kPa – 1,5 kPa = - 27,7 kPa
V okruh miestnosti č. 102, ktorý má tlakovú stratu 0,3 kPa, bude stále nadbytočný dispozičný tlak 9,7 kPa.
ΔHcerpadla v kotly - ΔHokr 102 - ΔHuzat.zv102 = zvyšný dispozičný tlak
20 kPa – 0,3 kPa – 10 kPa = 9,7 kPa
poznámka: ΔHuzat.zv102 10 kPa je pri min. nastavený 0,25
A aké sú úskalia?
- Do okruhu v miestnosti č. 106 bude prúdiť menej vody, čo bude mať za následok pokles tepelného výkonu podlahového vykurovania a miestnosť bude nedokúrená
- Ani nižší dispozičný tlak obehového čerpadla nepomohol ohruhu v miestnosti č. 102, stále je tam prebytočný tlak, stále dochádza k prehrievaniu miestnosti, stále je tu riziko upchatia nečistotou v systéme
- Čerpadlo pracujúce na limite svojich možností navýši prietok v miestnosť č. 101 a č. 102 na úkor ostatných miestností a v tých dôjde k pokles výkonu
RIEŠENIE č. 2
OPTIMALIZÁCIA DĹŽOK VYKUROVACÍCH OKRUHOV
Budeme vychádzať z týchto jednoduchých zásad:
Dĺžka okruhu:
- Optimálna dĺžka okruhu do 90m.
- Priemerná dĺžka všetkých okruhov je rovnaká +- 20%.
Úpravu dĺžky okruhu môžeme dosiahnuť nasledovne:
- zmenou rozostupu potrubia, čím sa mení dĺžka okruhu v miestnosti (napr. pri rozustupe 150m je cca o 1,7m väčšia spotrebu potrubia na 1 m2 podlahovej plochy ako pri rozostupe 200mm)
- spájaním malých miestnosti do jedného okruhu
- rozdeľovaním veľkých miestnosti na viac okruhov
- optimalizovaním pripojovacích potrubí (napr. zmenou polohy rozdeľovača v rámci dispozície)
Neprekračovať limitné rozostupy potrubia:
- minimálny - tak, aby nebola prekročená maximálna povrchová teplota podlahy podľa DIN EN 1264 (max. 29°C pre obytné zóny; max. 33°C pre kúpeľne, sprchy; max. 35°C pre okrajové zóny)
- maximálny - tak, aby mal systém podlahového vykurovania dostatočný tepelný výkon a pre obytné miestnosti nebol rozostup väčší ako 200mm (optimálne 150mm).
V našom príklade navrhujeme optimálne dĺžky cca 80 m vo všetkých okruhov.
Úprava okruhu miestnosti 106:
Plochu rozdelíme na dve polovice a vytvoríme dva samostatné okruhy. Tak sa dĺžka pôvodného okruhu 119 m zmení na 2 x 63 m. Aby sme sa čo najviac priblížili našej zvolenej optimálnej dĺžke 80 m, zmeníme rozostup rúrok z 200 mm na 150 mm. Tým sa nám okruhy predĺžia na 82 m. Skontrolujeme, či pre zmenu rozostupu nie je prekročená maximálna povrchová teplota podlahy (max. 29°C pre obytné miestnosti).
Úprava okruhu miestnosti 101 a 102:
Dva samostatné okruhy v týchto miestnostiach spojíme do jedného okruhu, ktorý bude mať dĺžku 63 m. Aby sme túto dĺžku trošku natiahli, zmenili sme rozostup zo 100 mm na 50 mm. Pri spätnej kontrole maximálnej povrchovej teploty podlahy pri rozostupe 50 sme zistili, že by bola teplota prekročená. Môžeme ale znížiť jej prívodnú teplotu. Ak to však spravíme a prekontrolujeme, či aj ostatným miestnostiam postačuje znížená teplota, zistíme, že miestnosť 105 by bola nedokúrená. A dĺžka okruhu v tejto miestnosti nám vyhovuje, 90 m. Vrátime sa teda k pôvodnej prívodnej teplote a k pôvodnému rozostupu 100 mm v miestnostiach 101 a 102 a stotožníme sa s dĺžkou 63 m.
Pôdorys objektu s optimalizovanými dĺžkami vykurovacích okruhov:
A ako to vyzerá s hydraulickým vyvážením sústavy?
Tentokrát bude pre nás najnepriaznivejší okruh v miestnosti č. 105, tlaková strata okruhu je najväčšia, rovná 12,7 kPa. Tlaková strata plne otvoreného uzatváracieho zvršku v rozdeľovači pri hmotnostnom prietoku 120 kg/h (2,0 l/min) okruhom v miestnosti č. 105 je 0,6 kPa. Potrebný dispozičný tlak pred rozdeľovačom bude:
ΔHokr105 + ΔHuzat.zv105 = ΔHcelkový
12,7 kPa + 0,6 kPa = 13,3 kPa
Skontrolujeme miestnosti 101+102:
Na uzatváracom zvršku pre miestnosti č. 101 a 102 potrebujeme „minúť“ čiže doškrtiť prebytočný dispozičný tlak čerpadla a to 5,4 kPa pri hmotnostnom prietoku 114 kg/h (1,9l/min)
ΔHcelkový - ΔHokr101+102 = ΔHuzat.zv101+102
13,3 kPa - 7,9 kPa = 5,4 kPa kPa
Nomogram pre stanovenie tlakovej straty uzatváracieho zvršku v rozdeľovači:
Prebytočný dispozičný tlak 5,4 kPa spotrebujeme na uzatváracom zvršku, ak ho nastavíme na prednastavenie 1,25.
Všetky zvyšné okruhy sa z hľadiska hmotnostných prietokov a tlakových strát pohybujú medzi týmito dvoma hraničnými okruhmi a dajú vyregulovať - systém bude vyvážený.
ZÁVER
Montáž podlahového vykurovania s optimálnymi dĺžkami všetkých okruhov je základný predpoklad pre hydraulicky vyváženú sústavu.
Kanalizácia – tichý problém, ktorý môže zničiť celý dom
Kanalizácia je jedna z najdôležitejších, no zároveň najviac podceňovaných inštalácií v stavbe. Dá sa povedať, že je to „srdce“ všetkej špiny, ktorej sa chceme zbaviť rýchlo, spoľahlivo a navždy.
Rozvod vody – keď sprcha zrazu páli alebo mrzne
Rozvod vody je rovnako citlivá kapitola ako kanalizácia. Rozdiel je len v tom, že pri poruche to často „odnesú“ obklady alebo dlažby – nikto však dopredu nevie, v akom rozsahu.
Kúrenie – prečo nestačí, že je radiátor teplý
Kúrenie je komplexná disciplína, ktorú možno bez preháňania nazvať alchýmiou. Každý dom má iné tepelné straty a každá inštalácia si vyžaduje individuálny prístup.
Plyn – miesto, kde sa naozaj nešetrí
Plynové rozvody patria výhradne do rúk oprávnených a certifikovaných firiem. V tejto oblasti neexistujú skratky ani kompromisy.
Prečo sa pri technických inštaláciách neoplatí šetriť
Pri stavbe alebo rekonštrukcii domu sa pozornosť často sústreďuje na viditeľné veci – podlahy, obklady, kuchyňu či sanitu. Technické inštalácie zostávajú skryté, a práve preto bývajú podceňované. Pritom ide o systémy, ktoré majú fungovať spoľahlivo desiatky rokov.
Termostatický ventil a jeho funkcia vo vykurovacej sústave
Radiátorový ventil s termostatickou hlavicou – skrátene povedané termostatický ventil - je z hľadiska konštrukčné považovaný za proporcionálny regulátor, ktorý pracuje bez pomocnej energie. Pri proporcionálnom regulátore je výstupná veličina úmerná vstupnej veličine, to znamená, že pri termostatickom ventile každej zmene vnútornej teploty ( regulovaná veličina x) je priradená úmerná zmena zdvihu ventilu (akčná veličina y).
Uchytenie vodomeru v bytovom jadre
Najčastejšie používané potrubia majú samonosnú funkciu. To znamená, že sú schopné ''niesť len samé seba''. Preto je potrebné prvky, osadené do potrubia, správne ukotviť.
Optimálna dĺžka okruhov podlahového vykurovania
Ako optimálne dĺžky potrubia v podlahovom vykurovaní dokážu zjednodušiť montáž a zabezpečiť správne vyregulovanie sústavy? Ukážeme si na príklade.

Potrebujete návrh alebo servisný zásah?
Pošlite nám stručný opis. Ozveme sa s návrhom riešenia a termínom.














